物件情報
NEW
中古一戸建て
白山市相木3丁目 中古一戸建て
価格
4,280万円
住所
白山市相木3丁目1番地15
土地面積
168.36㎡(50.92坪)
延床面積
126.67㎡(38.31坪)
築年数
2022年4月築(築3年)
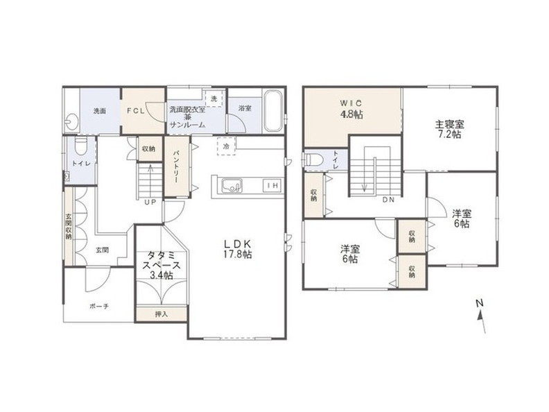
間取り
3SLDK+畳コーナー
おすすめポイント
松任駅も徒歩圏内、周辺にはお買い物施設も充実、多方面へのアクセスが良い人気のエリア。
近隣では区画整理事業が進み、新しいお家がたくさん並んでいるだけでなく、
道路拡張や歩道新設などの工事が進んでいます。
雪国には嬉しいカーポート付き!こういった設備がついているのは、中古戸建てを購入する大きなメリットの1つですね。
築3年ということもあり、手直し無しでそのままお住まいいただけます。
パントリーやファミリークロークなどの人気の間取りを取り入れ、
回遊性のある、共働きの多き現代の子育て世代にも嬉しい、家事ラク導線が叶う家!
本物件も近隣は同じような築年数のお宅が並び、清潔感がある街並みです。
道路を挟んだ先に相木町墓地がございますが、樹木が柵のようになっており本物件から直接墓石が見えにくく、
高い建物もなく開けた場所であり、さらに静かな環境というメリットも。
現在ご入居中のため、ご内見には事前予約が必須となります。
松任エリアの中でも良い条件が揃う当物件で、是非一度ご検討ください!
お問合せお待ちしております。
近隣では区画整理事業が進み、新しいお家がたくさん並んでいるだけでなく、
道路拡張や歩道新設などの工事が進んでいます。
雪国には嬉しいカーポート付き!こういった設備がついているのは、中古戸建てを購入する大きなメリットの1つですね。
築3年ということもあり、手直し無しでそのままお住まいいただけます。
パントリーやファミリークロークなどの人気の間取りを取り入れ、
回遊性のある、共働きの多き現代の子育て世代にも嬉しい、家事ラク導線が叶う家!
本物件も近隣は同じような築年数のお宅が並び、清潔感がある街並みです。
道路を挟んだ先に相木町墓地がございますが、樹木が柵のようになっており本物件から直接墓石が見えにくく、
高い建物もなく開けた場所であり、さらに静かな環境というメリットも。
現在ご入居中のため、ご内見には事前予約が必須となります。
松任エリアの中でも良い条件が揃う当物件で、是非一度ご検討ください!
お問合せお待ちしております。
周辺施設
蕪城小学校:約1000m
松任中学校:約1900m
バロー松任店:約500m
スギドラッグ相木店:約450m
セブンイレブン白山中成2丁目店:約450m
ホームプラザナフコ松任店:約500m
IRいしかわ鉄道 松任駅:約900m
松任中学校:約1900m
バロー松任店:約500m
スギドラッグ相木店:約450m
セブンイレブン白山中成2丁目店:約450m
ホームプラザナフコ松任店:約500m
IRいしかわ鉄道 松任駅:約900m
物件概要
物件名
白山市相木3丁目 中古一戸建て
所在地
白山市相木3丁目1番地15
価格
4,280万円
間取り
3SLDK+畳コーナー
接道状況
南側約6.0mの公道に約7.82m接道 西側約5.9mの公道に約13.3m接道 隅切り4.00m
交通
コミュニティバスめぐーる 新成1丁目バス停 徒歩約4分
角地
角地
引渡し時期
相談
地目
宅地
用途
居宅
入居状況
入居中
建蔽率/容積率
60%/200%
都市計画
市街化区域
用途地域
第一種中高層住居専用地域
上水
公営水道
下水
公共下水
ガス
オール電化
小学校
蕪城小学校
中学校
松任中学校
間取り詳細
1階:LDK17.8帖+畳コーナー3.4帖 水洗 洗面 FCL 脱衣室兼サンルーム 浴室
2階:洋室7.2帖+WIC4.8帖 洋室6帖×2室 水洗
2階:洋室7.2帖+WIC4.8帖 洋室6帖×2室 水洗
権利
所有権
駐車台数
3台
建物構造/階数
木造/2階
取引態様:媒介(専任)
