物件情報
NEW
中古一戸建て
能美市寺井町 中古一戸建て
価格
2,195万円(税込)
住所
能美市寺井町ハ-121
土地面積
243.63㎡(73.69坪)
延床面積
110.57㎡(33.44坪)
築年数
1975年2月築(築51年)
間取り
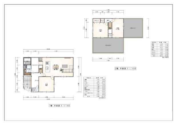
3LDK
おすすめポイント
小中学校が徒歩圏内のリフォーム済み物件が登場!
寺井小学校・寺井中学校が約1km圏内にあり、お子さまの通学負担を軽減できる安心の立地です♪
また、主要道路である8号線へのアクセスも良好で、小松方面・金沢方面のどちらへもスムーズに移動できます!
室内は家事動線がしっかりと考えられており、移動がとてもスムーズ。
日々の暮らしやすさを実感いただけます♪
キッチンには、リビング・ダイニングを見渡せる開放的なアイランドキッチンを採用!
家族や友人と会話を楽しみながら料理ができる、コミュニケーション性の高い空間となっています♪
さらに、2階には広々としたベランダを完備。
バーベキューを楽しむなど、ライフスタイルに合わせた多彩な使い方ができるのも魅力です!!
ぜひ一度ご覧ください。お問い合わせを心よりお待ちしております♪
寺井小学校・寺井中学校が約1km圏内にあり、お子さまの通学負担を軽減できる安心の立地です♪
また、主要道路である8号線へのアクセスも良好で、小松方面・金沢方面のどちらへもスムーズに移動できます!
室内は家事動線がしっかりと考えられており、移動がとてもスムーズ。
日々の暮らしやすさを実感いただけます♪
キッチンには、リビング・ダイニングを見渡せる開放的なアイランドキッチンを採用!
家族や友人と会話を楽しみながら料理ができる、コミュニケーション性の高い空間となっています♪
さらに、2階には広々としたベランダを完備。
バーベキューを楽しむなど、ライフスタイルに合わせた多彩な使い方ができるのも魅力です!!
ぜひ一度ご覧ください。お問い合わせを心よりお待ちしております♪
周辺施設
寺井小学校:約1100m
寺井中学校:約450m
北陸鉄道バス 九谷町:約800m
IRいしかわ鉄道線 能美根上駅:3400m
アルビス寺井店:約550m
ファミリーマート能美五間堂店:約650m
寺井中学校:約450m
北陸鉄道バス 九谷町:約800m
IRいしかわ鉄道線 能美根上駅:3400m
アルビス寺井店:約550m
ファミリーマート能美五間堂店:約650m
物件概要
物件名
能美市寺井町 中古一戸建て
所在地
能美市寺井町ハ-121
価格
2,195万円(税込)
間取り
3LDK
接道状況
西側約8.5mの幅員に約16.0m接道
交通
北陸鉄道バス 九谷町徒歩約11分
角地
非角地
引渡し時期
即日
地目
宅地
用途
居宅
入居状況
空家
建蔽率/容積率
60%/200%
都市計画
非線引き区域
用途地域
第一種住居地域
上水
公営水道
下水
公共下水
ガス
オール電化
小学校
寺井小学校
中学校
寺井中学校
間取り詳細
1階:LDK21帖 洋室8帖 洗面脱衣室 浴室 水洗 シューズクローク パントリー
2階:洋室8帖 洋室7.5帖 バルコニー×2
2階:洋室8帖 洋室7.5帖 バルコニー×2
権利
所有権
駐車台数
2台
建物構造/階数
鉄筋コンクリート板造2階
備考
2025年11月 リフォーム歴
・キッチン
・浴室
・トイレ
・洗面所
・給排水管
・床(フローリング等)
・壁、天井(クロス・塗装等)
・サッシインプラス
・外壁
・屋根
・キッチン
・浴室
・トイレ
・洗面所
・給排水管
・床(フローリング等)
・壁、天井(クロス・塗装等)
・サッシインプラス
・外壁
・屋根
取引態様:媒介(一般)
