物件情報
新築一戸建て
小松市桜木町 新築一戸建て ※A棟
価格
3,460万円(税込)
住所
小松市桜木町5番1
土地面積
203.71㎡(61.62坪)
延床面積
93.56㎡(28.30坪)
完成予定
令和7年12月
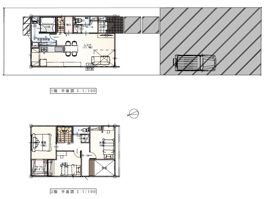
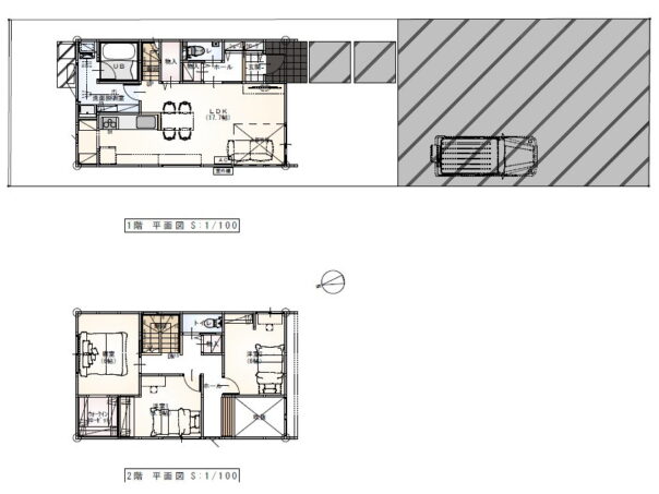
間取り
3LDK
おすすめポイント
【繋がり】を意識した間取り・デザインの分譲住宅が販売開始致しました。
シックなダークカラーを基調とし、自然素材の質感を生かしたタイル調の外壁材をアクセントに用いた、ソリッドデザイン住宅でオシャレ♪
LDKには南側の吹抜から自然光が差し込み、暮らしに心地よい開放感をもたらしてくれます。天井高も2.5mあり圧迫感なく快適に過ごせます。
さらに、自然と家族のコミュニケーションが生まれる【リビング階段】を採用。
家族との繋がりを感じられる間取りです。
キッチン横のパントリーや洗面脱衣室の収納棚、玄関ホールのクローゼットなど多彩な収納空間が子育て中でも自然と片付けられる暮らしを実現します。
玄関には大容量のシューズクローゼットを完備しています♪
保育所・小・中学校が近く、同じ学校区に通うお子さんも多く住む地域です。
周辺施設にはドラッグストア、スーパー、銀行、コンビニ、公園、スポーツ施設などもあります。
建築中につき、気になる詳細はお気軽にお問い合わせくださいませ♪
シックなダークカラーを基調とし、自然素材の質感を生かしたタイル調の外壁材をアクセントに用いた、ソリッドデザイン住宅でオシャレ♪
LDKには南側の吹抜から自然光が差し込み、暮らしに心地よい開放感をもたらしてくれます。天井高も2.5mあり圧迫感なく快適に過ごせます。
さらに、自然と家族のコミュニケーションが生まれる【リビング階段】を採用。
家族との繋がりを感じられる間取りです。
キッチン横のパントリーや洗面脱衣室の収納棚、玄関ホールのクローゼットなど多彩な収納空間が子育て中でも自然と片付けられる暮らしを実現します。
玄関には大容量のシューズクローゼットを完備しています♪
保育所・小・中学校が近く、同じ学校区に通うお子さんも多く住む地域です。
周辺施設にはドラッグストア、スーパー、銀行、コンビニ、公園、スポーツ施設などもあります。
建築中につき、気になる詳細はお気軽にお問い合わせくださいませ♪
周辺施設
小松市立芦城小学校:約650m
小松市立芦城中学校:約350m
幼稚園型認定こども園聖テレジア幼稚園:約400m
ファミリーマート小松城南店:約400m
アルビス小松城南店:約600m
小松市立芦城中学校:約350m
幼稚園型認定こども園聖テレジア幼稚園:約400m
ファミリーマート小松城南店:約400m
アルビス小松城南店:約600m
物件概要
物件名
小松市桜木町 新築一戸建て ※A棟
所在地
小松市桜木町5番1
価格
3,460万円(税込)
間取り
3LDK
接道状況
南側約5.08mの公道に約7.30m接道
交通
IRいしかわ鉄道 小松駅 徒歩18分
角地
非角地
引渡し時期
建物完成後3週間
地目
宅地
用途
居宅
入居状況
建築中
建蔽率/容積率
60%/200%
都市計画
市街化区域
用途地域
準住居地域
上水
公営水道
下水
公共下水
ガス
オール電化
小学校
小松市立芦城小学校
中学校
小松市立芦城中学校
間取り詳細
1階:LDK17.7帖 水洗 浴室 洗面
2階:洋室6帖+WIC 洋室6帖 洋室5.5帖 水洗
2階:洋室6帖+WIC 洋室6帖 洋室5.5帖 水洗
権利
所有権
駐車台数
3台
建物構造/階数
木造在来工法2階建
備考
※上下水道引込分担金 77万円 別途
※子育てグリーン住宅支援事業対象 40万円補助
※用途地域:準住居地域・第二種住居地域
建築確認番号:第IKJC25-7053号
※子育てグリーン住宅支援事業対象 40万円補助
※用途地域:準住居地域・第二種住居地域
建築確認番号:第IKJC25-7053号
取引態様:媒介(一般)
