物件情報
新築一戸建て
金沢市窪4丁目 ※A棟 新築一戸建て
価格
3,490万円(税込)
住所
金沢市窪4丁目159番3
土地面積
122.34㎡(37.00坪)
延床面積
94.91㎡(28.71坪)
完成予定
令和8年6月
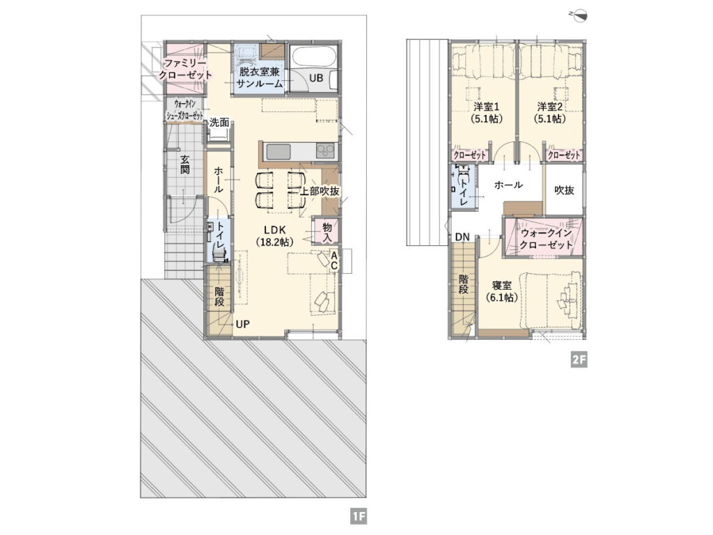
間取り
3LDK
おすすめポイント
【繋がり】を意識した間取り・デザインの分譲住宅が販売開始致しました。
モダンなトーンと木目調の温もりが調和する上質なコンセプトデザインでオシャレ♪
LDKには吹き抜け部分があることで2階とも繋がり、
空間の繋がりだけでなく、家族との繋がりも意識した空間づくりになっています。
玄関横にはウォークイン&シューズクローゼットを完備♪
ファミリークローゼットや1階サンルームなどの人気の間取りを取り入れ
1階で家事が完結する家事ラク導線が叶う家!
玄関から入ってすぐに洗面を設けることで、
来客時や帰宅時に自然と手洗いができる導線なのもイマドキ◎
さらに、自然と家族のコミュニケーションが生まれる【リビング階段】を採用。
家族との繋がりを感じられる間取りです。
保育所・小・中学校がどちらも徒歩10分以内でとても近く、同じ学校区に通うお子さんも多く住む地域です。
周辺施設にはドラッグストア、スーパー、コンビニ、公園などもある、子育てのしやすい環境。
金沢赤十字病院が近く、安心。
建築中につき、気になる詳細はお気軽にお問い合わせくださいませ♪
モダンなトーンと木目調の温もりが調和する上質なコンセプトデザインでオシャレ♪
LDKには吹き抜け部分があることで2階とも繋がり、
空間の繋がりだけでなく、家族との繋がりも意識した空間づくりになっています。
玄関横にはウォークイン&シューズクローゼットを完備♪
ファミリークローゼットや1階サンルームなどの人気の間取りを取り入れ
1階で家事が完結する家事ラク導線が叶う家!
玄関から入ってすぐに洗面を設けることで、
来客時や帰宅時に自然と手洗いができる導線なのもイマドキ◎
さらに、自然と家族のコミュニケーションが生まれる【リビング階段】を採用。
家族との繋がりを感じられる間取りです。
保育所・小・中学校がどちらも徒歩10分以内でとても近く、同じ学校区に通うお子さんも多く住む地域です。
周辺施設にはドラッグストア、スーパー、コンビニ、公園などもある、子育てのしやすい環境。
金沢赤十字病院が近く、安心。
建築中につき、気になる詳細はお気軽にお問い合わせくださいませ♪
周辺施設
伏見台小学校:約400m
高尾台中学校:約600m
ファミリーマート窪四丁目店:約140m
コスモス金沢窪店:約260m
ニュー三久伏見台:約700m
金沢赤十字病院:約400m
高尾台中学校:約600m
ファミリーマート窪四丁目店:約140m
コスモス金沢窪店:約260m
ニュー三久伏見台:約700m
金沢赤十字病院:約400m
物件概要
物件名
金沢市窪4丁目 ※A棟 新築一戸建て
所在地
金沢市窪4丁目159番3
価格
3,490万円(税込)
間取り
3LDK
接道状況
西側幅員約4.65mの公道に約7.61m接道
交通
北鉄バス 伏見台小学校バス停 徒歩約5分
角地
非角地
引渡し時期
建物完成後3週間
地目
宅地
用途
居宅
入居状況
建築中
建蔽率/容積率
60%/200%
都市計画
市街化区域
用途地域
第一種低層住居専用地域
上水
公営水道
下水
公共下水
ガス
オール電化
小学校
伏見台小学校
中学校
高尾台中学校
間取り詳細
1階:LDK18.2帖 脱衣室兼サンルーム 洗面 浴室 水洗 ファミリークローゼット シューズインクローク
2階:洋室6.1帖+WIC 洋室5.1帖×2室 水洗
2階:洋室6.1帖+WIC 洋室5.1帖×2室 水洗
権利
所有権
駐車台数
3台
建物構造/階数
木造/2階
備考
◆建築確認番号/第IKJC25-0606号
取引態様:媒介(一般)
