物件情報
NEW
中古一戸建て
金沢市高尾台4丁目 中古一戸建て
価格
4,580万円
住所
金沢市高尾台4丁89番1
土地面積
165.11㎡(49.94坪)
延床面積
107.22㎡(32.43坪)
築年数
2025年7月築(築0年)
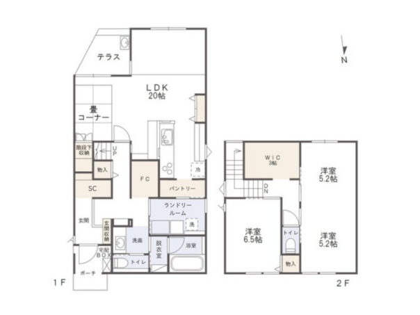
間取り
3SLDK
おすすめポイント
オダケホーム様施工の建物♪
ホワイト×ウッド調で、明るく落ち着きのあるオシャレな室内。
玄関の三角アーチだけでなく、
パントリー・ファミリークロークにも最近人気のアーチ壁の入り口を採用しており
遊び心のあるデザインが可愛いですね。
リビングの見せ梁、畳スペース、飾り棚などもオシャレな内装デザインです。
シューズクローク、ファミリークロークの他、細かな収納スペースを多く設け
住む方の使いやすさにもこだわった間取り。
LDKからテラスに出れる導線は、BBQやおうちプールなど、
お家での家族時間をより充実させてくれます。
ほぼ未入居ですので、ほとんど新築のようにお住まいいただけます。
現在ご入居中のため、事前予約必須となります。
内見のご予約はお早目に。是非お問合せください!
ホワイト×ウッド調で、明るく落ち着きのあるオシャレな室内。
玄関の三角アーチだけでなく、
パントリー・ファミリークロークにも最近人気のアーチ壁の入り口を採用しており
遊び心のあるデザインが可愛いですね。
リビングの見せ梁、畳スペース、飾り棚などもオシャレな内装デザインです。
シューズクローク、ファミリークロークの他、細かな収納スペースを多く設け
住む方の使いやすさにもこだわった間取り。
LDKからテラスに出れる導線は、BBQやおうちプールなど、
お家での家族時間をより充実させてくれます。
ほぼ未入居ですので、ほとんど新築のようにお住まいいただけます。
現在ご入居中のため、事前予約必須となります。
内見のご予約はお早目に。是非お問合せください!
周辺施設
扇台小学校:約200m
高尾台中学校:約800m
バロー高尾台店:約240m
ファミリーマート扇が丘店:約500m
クスリのアオキ扇が丘店:約650m
高尾台中学校:約800m
バロー高尾台店:約240m
ファミリーマート扇が丘店:約500m
クスリのアオキ扇が丘店:約650m
物件概要
物件名
金沢市高尾台4丁目 中古一戸建て
所在地
金沢市高尾台4丁89番1
価格
4,580万円
間取り
3SLDK
接道状況
北側幅員約12mの公道に約8.24m接道
交通
北鉄バス 扇台小学校前バス停 徒歩約3分
角地
非角地
引渡し時期
相談
地目
宅地
用途
居宅
入居状況
入居中
建蔽率/容積率
50%/80%
都市計画
市街化区域
用途地域
第一種低層住居専用地域
上水
公営水道
下水
公共下水
ガス
オール電化
小学校
扇台小学校
中学校
高尾台中学校
間取り詳細
1階:LDK帖20帖 水洗 浴室 ランドリールーム 脱衣室 パントリー ファミリークローゼット シューズインクローゼット
2階:洋室6.5帖 洋室5.2帖×2室 WIC3帖 水洗
2階:洋室6.5帖 洋室5.2帖×2室 WIC3帖 水洗
権利
所有権
駐車台数
3台(車種による)
建物構造/階数
木造/2階
取引態様:媒介(一般)
