物件情報
新築一戸建て
金沢市西金沢4丁目 新築一戸建て ※A棟
価格
2,980万円(税込)
住所
金沢市西金沢四丁目149番1の1部
土地面積
92.15㎡(27.87坪)
延床面積
81.15㎡(24.54坪)
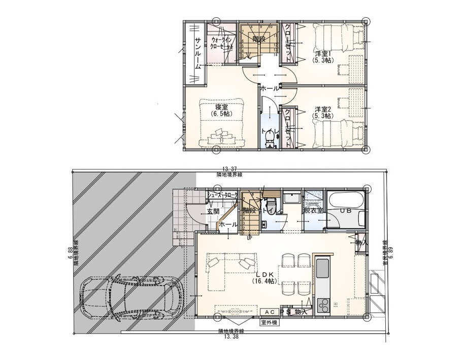
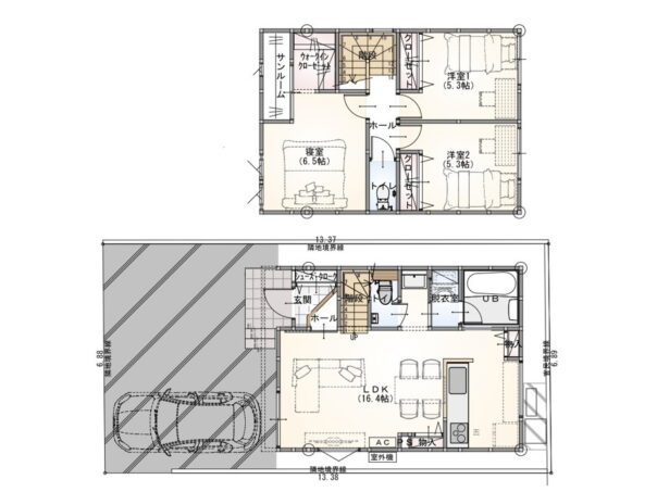
間取り
3LDK
おすすめポイント
【繋がり】を意識した間取り・デザインの分譲住宅が販売開始致しました。
グリーンカラーのエッジの効いた小幅なストライプ調デザインの外壁をアクセントにしたモダンな外壁デザインがオシャレ♪
LDKには折り上げ天井部分があり、段差をつけることで圧迫感なく開放感のある空間になります。
折り上げ天井部は木目がデザインされており落ち着いた内装を演出します。
玄関には大容量のシューズクローゼットを完備♪
キッチンからはLDK全体を見渡せる安心設計。
キッチン横には便利なパントリー収納を完備しています♪
2階にサンルームがあるため安心して干し、乾いた洗濯物はそのまま各部屋へ!
さらに、自然と家族のコミュニケーションが生まれる【リビング階段】を採用。
家族との繋がりを感じられる間取りです。
西金沢駅まで徒歩圏内!
通勤・通学に便利な立地で利便性に優れています。
幼稚園・小・中学校が近く、同じ学校区に通うお子さんも多く住む地域です。
周辺施設にはドラッグストア、スーパー、銀行、コンビニ、などもあります。
気になる詳細はお気軽にお問い合わせくださいませ♪
グリーンカラーのエッジの効いた小幅なストライプ調デザインの外壁をアクセントにしたモダンな外壁デザインがオシャレ♪
LDKには折り上げ天井部分があり、段差をつけることで圧迫感なく開放感のある空間になります。
折り上げ天井部は木目がデザインされており落ち着いた内装を演出します。
玄関には大容量のシューズクローゼットを完備♪
キッチンからはLDK全体を見渡せる安心設計。
キッチン横には便利なパントリー収納を完備しています♪
2階にサンルームがあるため安心して干し、乾いた洗濯物はそのまま各部屋へ!
さらに、自然と家族のコミュニケーションが生まれる【リビング階段】を採用。
家族との繋がりを感じられる間取りです。
西金沢駅まで徒歩圏内!
通勤・通学に便利な立地で利便性に優れています。
幼稚園・小・中学校が近く、同じ学校区に通うお子さんも多く住む地域です。
周辺施設にはドラッグストア、スーパー、銀行、コンビニ、などもあります。
気になる詳細はお気軽にお問い合わせくださいませ♪
周辺施設
金沢市立西南部小学校:約450m
金沢市立西南部中学校:約850m
幼保連携型認定こども園すずらん保育園:約450m
セブンイレブン金沢保古3丁目店:約600m
アルビス西南部店:約400m
金沢市立西南部中学校:約850m
幼保連携型認定こども園すずらん保育園:約450m
セブンイレブン金沢保古3丁目店:約600m
アルビス西南部店:約400m
物件概要
物件名
金沢市西金沢4丁目 新築一戸建て ※A棟
所在地
金沢市西金沢四丁目149番1の1部
価格
2,980万円(税込)
間取り
3LDK
接道状況
西側約4.70mの公道に6.88m接道
交通
IRいしかわ鉄道 西金沢駅 徒歩19分
角地
非角地
引渡し時期
即日
地目
宅地
用途
居宅
入居状況
空家
建蔽率/容積率
60%/188%
都市計画
市街化区域
用途地域
第一種住居地域
上水
公営水道
下水
公共下水
ガス
オール電化
小学校
金沢市立西南部小学校
中学校
金沢市立西南部中学校
間取り詳細
1階:LDK16.4帖 水洗 浴室 洗面 クローゼット
2階:洋室6.5帖+WIC 洋室5.3帖 洋室5.3帖 水洗
2階:洋室6.5帖+WIC 洋室5.3帖 洋室5.3帖 水洗
権利
所有権
駐車台数
3台(車種による)
建物構造/階数
木造在来工法2階建
備考
※上下水道引込分担金77万円(税込) 別途
子育てグリーン住宅支援事業対象 40万円補助
子育てグリーン住宅支援事業対象 40万円補助
取引態様:媒介(一般)
